
Mockingbird Community Church sits at the corner of Ellsworth and McMillan near Glencoe Park. Photography by Renee Umsted.
After two virtual meetings, a community meeting on siteĀ and a City Plan Commission hearing and vote, Glencoe Park neighbors gathered Tuesday night to discuss the rezone request for the site currently occupied by Mockingbird Community Church at the corner of McMillan and Ellsworth.
District 14 Council Member Paul Ridley scheduled and hosted the meeting in the sanctuary of the church.
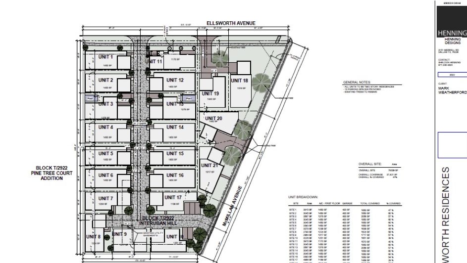
Although occupied by a church for 75 years, the site is zoned for duplex uses. Developer Mark Weatherfordās request is to rezone the site to category MF-2(A) but restrict the uses to 21 detached single-family home dwellings, prohibit any multifamily use, limit the height to two stories, limit access to two points on Ellsworth and two points on McMillan, restrict short-term rental uses and adopt a tree preservation program. He proposes a project similar to Pine Tree Court, his single-family development adjacent to the church on property he bought from the church 10 years ago.
In their Nov. 10 meeting, the plan commission voted unanimously to approve the project and forwarded their recommendation to the Dallas City Council.
Ridley opened the meeting by telling the 16 residents in attendance that he was āhere to listen ⦠and consider everything you have to say.ā Rob Baldwin, zoning consultant for Weatherford, then identified the differences between what a developer could do āby rightā under the current duplex zoning versus Weatherfordās plan. That includes 21 single family units instead of 22 duplex units, two stories instead of three stories and fewer curb cuts.
Most of the audience had seen the presentation several times and saw no real reason for Baldwin to finish. But they did see several reasons for opposing the rezone.
One of them is Richard Harper, who lives across from the site on Ellsworth.
āMy issues are two things ā the density and the process by which we got to this decision,ā Harper began.
At this point, Greg Byrd, pastor of the church, rose from his seat, approached the front and from the microphone confronted neighbor Martha Carlson in the audience. In a moment of vitriol stunning even for contentious East Dallas rezones, Carlson had given Byrd the middle finger.
Ridley asked for civility. After the meeting, Carlson confirmed she made the gesture to Byrd, adding a verbal obscenity for emphasis.
āI never dreamed that would happen,ā Byrd said.
After the interruption, Harper continued, addressing Ridley.
āI am going to say a few things that arenāt going to be received well, but they are not meant to mean-spirited. Iām going to try and reflect how your constituents are feeling,” Harper said.
Harper said the density of the proposed development was too high, inconsistent with the neighborhood. He also said comments suggesting the potential of three stories, balconies and short-term rentals were scare tactics.
Neighbors agreed with him thatĀ additional driveways and dwelling units was preferable to the developer’s plan. Harper said he would rather have Musquite, a duplex developer with product in the neighborhood, handle the project.
āWe do not want another Pine Tree Court,ā Harper said.
- The proposed site plan includes 21 single-family units with limited access from Ellsworth. Courtesy of Baldwin Planning.
- The site plan for existing duplex zoning shows 22 units with many access points from Ellsworth and McMillan. Courtesy of Baldwin Planning.
Several people in attendance, including Harper, spoke about District 14 City Plan Commissioner Melissa Kingston’s involvement in the project; Kingston did not attend the meeting.
āI donāt know any of us that she has engaged, but she has sure as hell engaged with you [Baldwin] and she sure engaged with you [Weatherford], and I think thatās a little too damn cozy in this whole thing,ā he said.
Another neighbor said he believed that Kingston āwas not honest or forwardā with the other plan commissioners about the numbers in opposition and there was little debate among the commission once Kingston motioned to approve the plan. He said he thought the process was ācrummy.ā
Another neighbor opened the door for some compromise. Though he opposed the plan as is, he said he could support a single-family development if there were more engagement from the developer, Baldwin and Kingston.
āSpecific recommendations would be to take a couple of houses out, listen to the neighbors, build it in a way that everybody feels great about Mark Weatherford instead of this got crammed down courtesy of Melissa,ā the neighbor said.
When asked to comment about the meeting, Kingston said, āThis is a great deal for the church site. A super-majority of the surrounding properties support it. Anyone who knows my record in the community would laugh at the notion that I am in any developerās pocket. The opponents flipped off the pastor in his own church. Speaks volumes.”
Ellie Adelman said she was troubled by the fact that the city “was always talking about the missing middleā for housing options while approving a project for million-dollar homes rather than keeping the zoning where rented duplex units could house middle-income families.
Harper addressed Weatherford about compromise, strongly hinting that a reduction of a few houses and more green space and brick could bring neighborhood support. Weatherford was non-committal.
āWhy wonāt you just do the by-right duplexes?ā Adelman asked.
āIt wonāt sell as well. My business is single family. Itās just a better product,ā Weatherford said.
The city council will vote Dec. 14. Both sides will have one final time to make their case. Neighbors are encouraged to register to speak during the meeting’s public hearing.

